Хамелеоний форум
 
*
Добро пожаловать, Гость. Пожалуйста, войдите или зарегистрируйтесь. 11 января 2026, 10:15:15


Войти


Страниц: 1 [2]   Вниз
  Печать  
Автор Тема: Куча вопросов!  (Прочитано 9922 раз)
0 Пользователей и 1 Гость смотрят эту тему.
saygak
Модератор
*****
Offline Offline

Сообщений: 2864


Город: Москва



Просмотр профиля
« Ответ #15 : 18 ноября 2009, 14:46:03 »

Температура поменяется если поставить лампу большей мощности. Какая мощность фосфорной лампы?
Кстати такая?

Зеркалку можно попробовать снаружи поставить, надо следить чтобы вентиляционная сетка не плавилась от нагрева. По-моему никто еще снаружи ее не ставил.
И где вы все покупали?

С веток хам охотнее ест сверчков, в нем просыпается инстинкт охотника, надо успеть догнать свера, не дать ему убежать и спрятаться. К кормушке надо приучить и не баловать, захочет есть - залезет в кормушку. Сверчки на свободном выгуле в терре срут везде Смеющийся, забиваются в фонтан, а с голоду крупные могут серьезно покусать хама, поэтому если гуляют их тоже лучше подкармливать.
Мой тоже к саранче привык и теперь от сверчков морду воротит.
Записан

Lara
**
Offline Offline

Сообщений: 319


Город: Москва


Просмотр профиля
« Ответ #16 : 18 ноября 2009, 15:21:15 »

 улыбающийся
« Последнее редактирование: 05 апреля 2010, 01:02:12 от Lara » Записан
Екатерина
****
Offline Offline

Сообщений: 1957


Город: Москва


Просмотр профиля
« Ответ #17 : 18 ноября 2009, 15:46:07 »

Мой тоже к саранче привык и теперь от сверчков морду воротит.
Антон,я смотрю,что не только мой хам охамел ха-ха теперь кормлю только саранчой через день. Ну и конечно фрукты. Сверов скорее съем я,чем он Рот на замке
Для Liliya:плохо,что хамик может до любого места дотянуться. Он так может получить серьезные ожоги об греющую лампу...
Записан
ClaVa
*
Offline Offline

Сообщений: 24


Город: Москва, рыжее СВАО


Просмотр профиля
« Ответ #18 : 18 ноября 2009, 17:29:36 »

Зеркалку можно попробовать снаружи поставить, надо следить чтобы вентиляционная сетка не плавилась от нагрева. По-моему никто еще снаружи ее не ставил.

у хагеновских glass террариумов вверху сетка металлическая, не плавится (если,  конечно, ставить на нее, а не на пластиковую раскладку:) проверено лично (у меня так стоит у сцинка - все ок, все точечно прогревается). ИМХО: если речь именно  o террариуме exоterra - я бы не стала вмонтировать светильник с зеркалкой вовнуть, он снаружи на метллической сетке и задачу свою решит (прогреет) и опасности "встречи" с хамом меньше Улыбка особенно при высоте 60 см итого Улыбка
Записан
Lara
**
Offline Offline

Сообщений: 319


Город: Москва


Просмотр профиля
« Ответ #19 : 18 ноября 2009, 18:06:46 »

 улыбающийся
« Последнее редактирование: 05 апреля 2010, 01:03:33 от Lara » Записан
saygak
Модератор
*****
Offline Offline

Сообщений: 2864


Город: Москва



Просмотр профиля
« Ответ #20 : 19 ноября 2009, 16:02:01 »

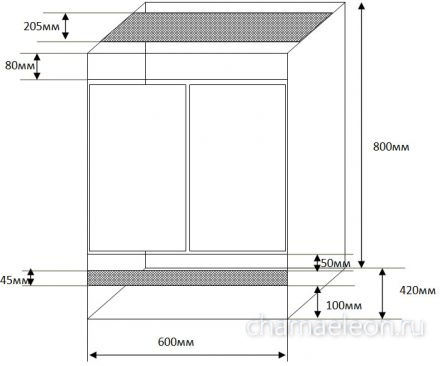
Правильная вентиляция звучит как заклятие. В это словосочетание вложен глубочайший смысл, понять его полностью непостижимо. Хлопок одной ладонью Веселый
Как мы выяснили правильная вентиляция схематично выглядит так:


Я бы не стал выкидывать хороший крупный экзотеровский терр из-за отсутствия вентиляции на передней панели. При наличии рук ее можно доработать самому.
Тем более что у йеменских хамелеонов температурный режим выше, чем у остальных, что усиливает вентиляцию в террариуме.

Лампа накаливания снаружи греет точно так же, как и внутри. При недостатке тепла можно поставить более мощную лампу. Некоторые устанавливают УФ лампу за вентиляционной решеткой, западные коллеги почти всегда ставят ее снаружи. Я уважаю Александра и ценю его мнение, но не вижу причин попробовать сделать иначе, разницы воздействия теплового и светового излучения не будет. Конечно кто додумается поставить лампу накаливания на пол сильно ускорит вентиляцию и собъет ориентиры хаму на небо и землю, и вероятно навредит хаму.
Записан

Lara
**
Offline Offline

Сообщений: 319


Город: Москва


Просмотр профиля
« Ответ #21 : 19 ноября 2009, 21:09:39 »

 улыбающийся
« Последнее редактирование: 05 апреля 2010, 01:04:07 от Lara » Записан
Настёна
*
Offline Offline

Сообщений: 158


Город: Красноярск


Просмотр профиля
« Ответ #22 : 20 ноября 2009, 10:12:39 »

Экспериментировать конечно не хочется,но если бы лампа накаливания была снаружи,было бы безопаснее и любимое место(верх)хамиков было свободнее.Может ещё кто-нибудь опытный выскажет своё мнение?
Записан
Олеся
***
Offline Offline

Сообщений: 801


Город: г. Санкт-Петербург


Просмотр профиля
« Ответ #23 : 20 ноября 2009, 10:51:12 »

 По мне так тоже без разницы где лампа,внутри или снаружи,только светить должна в определённом месте. Главное-соблюсти температурный режим.
 Просто,если лампа находится снаружи,то она даёт меньше тепла,соответственно нужна будет помощнее. Да и решается проблема с изоляцией лампы(сеткой),от ожогов.
 
Записан
ClaVa
*
Offline Offline

Сообщений: 24


Город: Москва, рыжее СВАО


Просмотр профиля
« Ответ #24 : 20 ноября 2009, 11:38:32 »

ClaVa не хочу с Вами спорить, где должна находится лампа обогрева,т.к.опыт содержания хамелеонов всего 1,5 года,может мнение более опытного хамелеоновода Вас убедит Александра Киселева в теме "йеменец заболел"(ссори не получается вставить ссылку скопировала текст сообщения) Улыбка.
спасибо, что сразу дали текст, а не отправили на поиски того, не знаю чего Улыбка
Я обычно всегда пытаюсь выяснить, на чем основана та или иная позиции, хотя бы для целей самообразования и понимания того, что делаю Улыбка
Собственно, у меня лично лампа стоит внутри (потому что "терр от Киселева" Улыбка), но честно - не понимаю принципиальной разницы установки лампы в данном конкретном случае (правда, я не технарь, но если кто объяснит "на пальцах", я пойму Улыбка
« Последнее редактирование: 20 ноября 2009, 13:19:00 от saygak » Записан
Region
**
Offline Offline

Сообщений: 388


Город: Тольятти


Просмотр профиля
« Ответ #25 : 20 ноября 2009, 17:48:09 »

ClaVa, когда лампа для обогрева находится внутри террариума, при небольшой мощности она нагревает воздух внутри, который поднимается вверз и выходит через верхнюю вентиляцию. В это же время на его место поступает воздух через нижнюю вентиляцию. Так происходит воздухообмен.
Если же лапма снаружи, то нужна бОльшая мощность (затраты). Интенсивность воздухообмена, по-моему, будет зависеть от места установки лампы (над сеткой, над стеклом).
Записан

"В добрых глазах приручённого зверя
Каждый ребёнок прочтёт без труда:
"Я полюбил тебя, я тебе верю!
Ты ведь не бросишь меня никгда?"
В. Д. Берестов
ZERenish
*
Offline Offline

Сообщений: 80


Город: Israel, Tel - Aviv


Просмотр профиля WWW
« Ответ #26 : 30 мая 2010, 15:35:05 »

интересно... а на Мадагаскаре лампы стоят внутри или снаружи?
Записан

Chamaeleo Chamaeleon

Рептилии не умирают внезапно.
Страниц: 1 [2]   Вверх
  Печать  
 
Перейти в:  

Купить туристическую страховку
Powered by MySQL Powered by PHP Powered by SMF 1.1.4 | SMF © 2006, Simple Machines LLC
Joomla Bridge by JoomlaHacks.com


Клуб любителей хамелеонов Rambler's Top100
Valid XHTML 1.0! Valid CSS! Dilber MC Theme by HarzeM