Правильная вентиляция в террариуме для хамелеона.
7 Одно из главных условий успешного содержания хамелеона в террариуме это хорошая вентиляция, или как ее еще называют, правильная вентиляция. Хамелеону совершенно не подходит аквариум. С плохой вентиляцией животное быстро зачахнет, разболеется и спасти его уже будет невозможно. Застаивающийся воздух в террариуме с высокой влажностью так же может привести к образованию плесени.
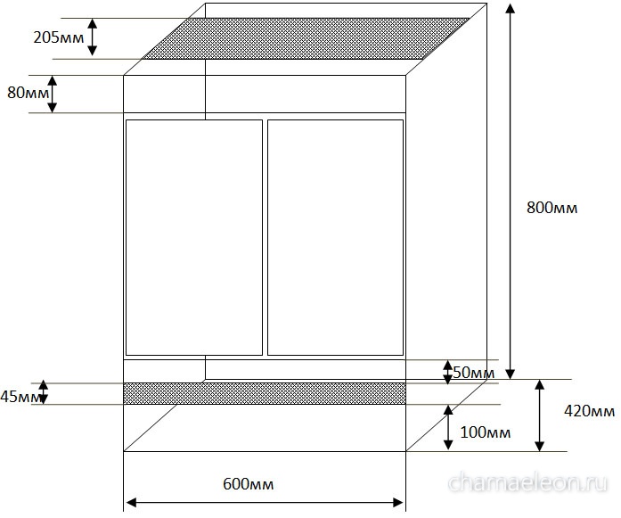
Схема террариума с правильной вентиляцией требует наличия крупного вентиляционного отверстия в потолке террариума, куда будет подниматься и уходить разогретый теплый воздух. Свежий воздух поступает извне через нижнюю вентиляцию в передней стенке террариума. Таким образом свежий более холодный воздух затягивается через низ, не оставляя "застойных" углов, нагревается от теплых поверхностей, разогретых лампой накаливания, и поднимается наверх через потолочную вентиляцию террариума.

Это основная схема вентиляции для террариума размером 60х42х80 ДхШхВ. Для террариумов большего другого размера ее можно масштабировать. Передняя вентиляция может быть достаточно узкой полосой в 2-3 см. Этого достаточно, поскольку конвекция происходит за счет большой вентиляции в потолке, куда будет выходить теплый воздух. Сила конвекции напрямую зависит от разности температур внутри террариума и снаружи: чем холоднее в комнате, тем сильнее вентиляция. Здесь тоже важно не переборщить и не делать сквозняков, это губительно отразится на здоровье хамелеона. В готовом террариуме вентиляцию можно ослабить прикрыв часть потолочного отверстия плоским предметом. Посмотреть как работает вентиляция можно пустив дым, например сигареты, у вентиляционных отверстий снизу, и понаблюдать как он за несколько минут выйдет через потолок (хамелеон не должен находиться в террариуме в этот момент!). Слишком большая вентиляция в сухой квартире (особенно в отопительный сезон) будет быстро высушивать террариум после опрыскивания.
Террариум Существует обособленное понятие "правильной вентиляции", отличительной особенностью которого является размещение потолочной вентиляции ближе к переднему краю, а не по центру как на схеме выше. На вентиляцию это абсолютно никак не влияет, но кто-то привык содержать хамелеонов именно в такого рода террариумах. На практике хамелеонов успешно содержат в террариумах с центральной вентиляцией и смещенной к переднему краю.
Эти виды вентиляции подходят для содержания наиболее популярных видов хамелеонов: пантеровых и йеменских. Для горных хамелеонов, например хамелеона Джексона, нужна более мощная вентиляция, поэтому вместо переднего стекла используют сетку.
Зная подробности вентиляции, террариум можно соорудить самому, или заказать профессионалам. В Москве, например, террариумы для хамелеонов профессионально изготавливает мастерская www.gekko.ru. Обращаясь в другие мастерские четко объясняйте схему требуемого террариума с размерами и расположением вентиляционных отверстий! Некоторые готовые террариумы не подходят для содержания хамелеонов, хотя продавцы в магазинах могут убеждать в обратном. Фирма ExoTerra делает подобные стеклянные террариумы, на коробке даже изображены хамелеоны, но они не подходят для хамелеонов. Для наиболее неприхотливых видов их можно приспособить, убрав переднюю панель под дверцами.
Автор saygak
|